|
不锈钢户外动力柜
不锈钢户外动力柜
不锈钢户外动力柜分为落地式以及XL-21型,主要用于工矿企业。交流频率50Hz,电压500V以下三相三线、三相四线电力系统,作动力照
明配电用。打开门后全部电器敞露,便于检修维护。进出线采用电缆接线操作,安全可靠。
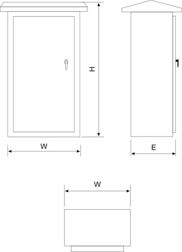
外形尺寸图
外形尺寸

