|
MNS低压抽出式开关柜
概述
本系列低压抽本出式开关柜是一种用标准模件由工厂组装(FBA)的组合式柜型。
本系列低压抽本出式开关柜适用于发电厂、变电站、石油化工、冶金轧钢、交通能源、轻工纺织等厂矿企业和住宅小区、高层建筑等场所,作为交流50~60HZ,额定工作电压交流660V及以下的电力系统的配电设备的电能转换、分配及控制之用。
装置符合G本B2751.1《低压成套开关设备》及JB/T 9961《低压抽出式成套开关设备》国家专业标准并符合IEC 349-1国际专业标准。
正常使用环境条件
◆周围空气温度不高于+40℃,不低于-5℃,并且24h内其平均温度不高于+35℃。
◆大气条件:空气清洁,相对湿度在最高温度为+40℃时不超过50%,在较低温度时允许有较高的相对湿度,例如+20℃时为90%,但应考但虑到温度变化,有可能会偶然地产生凝露。
◆海拔高度不超过2000m。
◆本装置适应于以下温度的运输和储存过程:-25℃至+55℃的范围之间,在短时间内(不超过24h)可达+70℃,在这些极限温度装置下不应遭到任何不可恢复的损伤,而且在正常条件下应能正常工作。
◆如果上述使用条件不能满足时,应由用户和制造厂协商解决。
◆当本装置使用于海上石油钻采平台和核电站时,应另行签订技术协议。
基本技术参数
1、电气性能
2.防护等级
符合IEC 5 29、DIN 4 0050标准
IP30对大于Φ2.5MM固定防护
IP40对大于Φ1.0MM固定防护
IP54对尘埃和任意方向喷溅作防护
(订购IP54防护等级时应与制造厂协商)
柜体结构
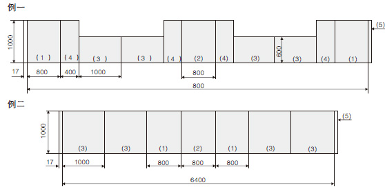
开关柜柜体基本结构式由C型型材装配组成。C型材是以E=25mm为模数安装孔的钢板弯制而成。全部柜架及内层隔板都作镀锌磷化处理。四周门板,侧板则作高压静电喷塑。柜体基本结构见图1所示:柜体基本尺寸见图2.表1、表2。
开关柜类型
1.动力配电中心柜(PC):可采用Emax,MT,3WN,AH、ME系列等断路器。
2.电动机控制中心柜(MCC):由大小抽屉组装而成,各回路主开关采用高分断塑壳断路器或旋转式带熔断器的负荷开关。功率因数自动补偿柜(带有手动、自动及远动功率因数补偿装置)
A动力配电中心(PC)柜
B电动机控制中心(MCC)柜
C型型材组成的柜架结构(图)1
柜体示意图(图)2
柜体的分区设计
•动力配电中心(PC)
(1).PC柜内分割成三个隔室;
平母线隔室 :水在柜的后部;
能单元隔 室 :功在柜前上部或柜前左边;
(2).分隔措施:
平母线隔室与水功能单元隔室之间用钢板分隔。
制回路隔室与控功能单元隔室之间用阻燃型聚苯醚塑料罩壳分隔。
(3).柜内安装的框架式断路器,均能在关门状态下实现柜外手动操作,观察断路器的分合闸状态和根据操作机构与门的位置关系,断出断路器在判试验位置还是在工作位置。
(4).主电路与辅助电路之间设计成分隔结构,仪表、信号灯和按钮等组成的辅助电器单元,均安装于塑料板上,板后用阻燃型聚氨发泡塑料做成酯的罩壳与主电路分离。
•抽出式电动机控制中心和小电流的动力配电中心(MCC)
抽出式 ,C C抽柜内分成三个隔室,即柜后的水平母线隔室,柜前部左边的功能单元隔室,柜前部右边的电缆隔室。水平母线隔室与能单元隔功室之间用阻燃型发泡塑料制造的功能板分隔,电缆隔室与水平母线隔室、功能单元隔室之间用钢板分隔。
MCC(电动M机控制中心)的抽屉分为以下5种:
•8E/4:高 200×宽150×深400mm
•8E/2:高 200×宽300×深400mm
•8E:高 200×宽600×深400mm
•16E: 高 400×宽600×深400mm
•24E: 高 600×宽600×深400mm
•后出线开关柜结构
为减少开关柜排列宽度而设计的出现,开关柜的主母线水平安装在开关柜的顶部,柜的后半部为电缆室,进出线电缆均在柜后电缆室连接。开关柜的正面为装置小室,安装开关设备的功能单元。该系统设计将开关柜侧面的电缆室移至开关柜后室,大大减少了开关柜的排列宽度,以进一步满足变电所空间布置的要求。
馈电柜柜宽600mm,深1000/1200mm,顶部为独立的主母线室与装置小室隔离。正面装置小室有效安装高度为72E(E=25mm),经多功能板与后部电缆室隔离,充分利用了开关柜的安装空间,结构紧凑,单元配置灵活。背面电缆室带门,安装及维护方便。
进线柜的宽度按进线单元的柜架电流确定,推荐宽度为400/600/800/1000mm,柜深1000mm。
母线系统
开关柜可配置二组主母线,安装在开关柜的后部母线室。二组母线可分别安装在柜后上部和下部。根据进线需要,上下二组母线可分别采用不同或相同截面的材料。二者既可单独供电,也可并联供电,或可用作后备电源。
配电母线(垂直母线)组装在阻燃型塑料功能板中,通过特殊接件与主母线连接。既可防止电弧引起的放电,又能防止人体接触。柜内设有独立的PE接地系统和N中性导体。二者贯穿整个装置,安装在柜前底部及右侧。各回路接地或接零都可就近联接。整个母线系统安装见图3所示。柜架结构件全部采用自攻螺钉联接,具有较高的接地可靠性。
中性母线和中性保护母线平行地安装在功能单元隔室的下部和垂直安装在电缆中。N线与PE线之间如用绝缘子相隔,则N线与PE线分别使用,若二者之间如用导体短接,即成PE/N线。
装置的保护电路由单独装设并贯穿于整个排列长度的PE线(或PE/N线)和可导电的结构件二部分组成。装置中金属结构件,除外表的门和封板外,其余都经过镀锌处理,在结构件的连接处,都经过精心设计,使其能通过一定的短路电流。
保护接地系统
装置的保护电路由单独装设并贯穿于整个排列长度的PE线(或PE/N线)和可导电的结构件二部分组成。装置中金属结构件,除外表的门和封板外,其余都经过镀锌处理,在结构件的连接处,都经过精心设计,使其能通过一定的短路电流。
辅助电路和电缆槽
在功能单元隔室的顶部装有辅助电路电缆槽,槽内可安放柜间连接线合公用电源线。
电缆和控制线连接
在抽出式组件的一侧,电缆小室中装有接线装置和端子,用于连接出线电缆、控制线合组件之间的接线。进出线电缆和控制线接线装置布置在电缆小室右侧的导轨上。主回路端子位于后部,控制线端子位于前方45°方向。控制线端子的接线可用螺丝或插入式线鼻子连接或用铜接头来连接。抽出式组件的转接件上主回路端子小于63A的,配有PE端子。
安全保护系统
每柜设有一块或一组阻燃型的塑料功能板,安装在主母线室与电器室之间,其作用为有效防止开关元件因故障引起的飞弧与母线之间短路造成的事故,采取了严密的隔离措施。
上下层抽屉之间有带通风孔的镀锌金属底板相隔离,较小的8E/4,8E/2抽屉其四周均为阻燃型工程塑料件,故相邻回路之间有较强的绝缘隔离作用。柜内采用了多种塑料组件以支撑带电部分,这些组件式无卤素的并具有CT1300等级以上的防漏电性能。
抽屉类型
抽屉的电气和机械连锁
抽屉单元有可靠的机械连锁位置,通过操作手柄控制,具有明显准确的合闸、试验、抽出和隔离位置。操作机构功能见图4、图5。为加强安装防范,操作手柄定位后可加上挂锁,最多可加三把锁,见左图。
抽屉单元到位后必须严格按照图4、图5所列操作开关功能及其位置动作,否则易损坏结构件,请用户使用时注意。
操作开关功能示意图
组合方式示意图(图6)
安装示意图(图)7
母线桥安装示意图(图)8

