|
XGN66-12箱型固定式金属封闭开关设备
产品概述
XGN66-12箱型固定式交流金属封闭式开关设备(以下简称开关柜)适用于3.6~12k V相二交流50Hz系统中作为接受与分配电能的装置,适合于频繁操作的场所和配装油开关的开关柜改造之用。其母线系统为单母线系统和单母线分段系统。
开关柜符合GB3906《3.6~40.5kV交流金属封闭开天设备和控制设备》和DL404《户内交流高压开关柜订货技术条件》的要求,开关柜外形美观、体积小、具有完整可靠的防误操作功能。开关柜内配装的主开关VS1-12型或ZN28-12型真空断路器,隔离开采用GN30-12、GN19-10型隔离开关,接地开关采用JN15-12型接地开关。
型号及含义
使用条件
◆ 环境温度:最高+40℃,最低-15℃;
◆ 海拔高度:不超过1000m;
◆ 相对湿度:日平均值不大于95%,月平均值不大于90%;
◆ 地震强度不超过8级;
◆ 无火灾、爆炸危险、严重污秽、化学腐蚀及剧烈震动的场所。
主要技术参数
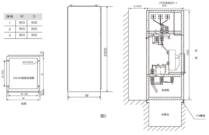
安装尺寸及基础示意图
◆ 安装基础参考图(2),基础槽钢突出地面1-3mm,每米范围内不平度不应超过1.5mm,全长范围内不超过5mm。
◆ 将开关柜按顺序放置于基础上,调整好安装的位置。然后用M12螺栓或者用点焊方法进行固定, 与柜柜之间用M8螺栓并紧。
◆ 拆开后盖板安装主母线和一次电缆,端子接触面应注意清理干净并涂中性凡士林。安装好后注意封堵好一次电缆孔。
◆ 连接柜间接地母线, 沿使开关柜排列方向连成一体,查检接地是否有遗漏,接地回路是否连续导通,接地电阻应不大于1Ω。
◆ 安装二次电缆,电缆由柜前底部引入,顺侧壁进入继电器室,分接于端子排上;装好后封堵电缆孔。
◆ 清理柜内灰尘杂物。
投运
投运前应进行如下检查和调试:
◆ 根据订货要求检查柜内安装的电气元件的型号与规格是否相符;检查紧固件是否松动;检查一、二次配线是否正确;操作隔离开关、接地开关、断路器、机械联锁3~5次,应灵活无卡滞现象,联锁满足“五防” 要求,然后对机械活动部位加注润滑脂。
◆ 按说明书和出厂试验报告检查开关柜的绝缘水平和回路电阻、断路器的机械特性,试验结果应与出厂试验报告相符或相近。
◆ 对继电器或微机测控装置上的电气参数进行整定。
◆ 按说明书进行停送电操作。
维护与检修
用户应定期对开关柜进行维护与检修,内容有:
◆ 清扫各部位灰尘,特别是绝缘件表面的积尘;
◆ 检查机械活动部位,定期加注润滑油脂,使之保持动作灵活可靠;
◆ 检查电接触部位接触是否良好,有无过热现象,接地回路是否导通;
◆ 定期检查紧固件是否紧固;用户一般应在专业人员的协助下进行故障检修,如属少许调整和小故障,用户自行检修应;照本说明书主要和元件各自的说明书进行。
出厂资料
制造厂供货时应提供下列文件及附件:
◆ 发货清单;
◆ 产品合格证及出厂试验报告;
◆ 使用说明书;
◆ 有关电气图纸;
◆ 主要元件说明书;
◆ 柜门钥匙,操作手柄及合同单规定的备品备件。
订货须知
订货时应提供下列技术资料:
◆ 主接线方案编号、用途和单线系统图、额定电压、额定电流, 额定短路开断电流、 配电室平面布置图及开关柜的排列配置图等;
◆ 开关柜控制、测量及保护功能的要求以及其它闭锁和自动装置的要求及原理图;
◆ 开关柜内主要电气元件的型号,规格及数量;
◆ 如开关柜之间或进线柜需要母线桥连接,应提供母线桥的额定载流量,母线桥的跨度,距地高度等具体要求数据;
◆ 开关柜使用在特殊环境条件时,应在订货时详细说明;
◆ 其它特殊要求,在订货前须详细书面说明、协商。如订货合同中有所用变柜,地基制作请按照提供的基础图施工。

