|
概述
KYN61-40.5(Z)型铠装移开式交流金属封闭开关柜(以下简称开关柜)系三相交流量50Hz、额定电压40.5kV的户内成套配电装置。作为发电厂、变电站及工矿企业接受和分配电能之用,对电路起到控制、保护和监测等功能,还可用于频繁操作的场所。本开关柜符合GB/T11022-1999、GB9306-2006及DL/T 04-2007等标准。
主要特点
·柜体结构采用组装式,断路器采用手车落地式结构;
·配用全新型复合绝缘真空断路器,并具有互换性好更换简单之特点;
·手车车架中装有丝杠螺母推进机构,可轻松移动手车,并防止误操作而损坏推进结构;
·所有的操作均可在柜门关闭状态下进行;
·主开关、手车、开关柜门之间的联锁均采用强制性机械闭锁方式,满足“五防”功能;
·电缆室空间充裕,可连接多根电缆;
·快速接地开关用于接地和关合短路;
·外壳防护等级IP3X,手车室门打开状态下,防护等级IP2X;
·产品符合GB 9306-2006、DL/T 04-2007及参照采用国际IEC 928标准。
使用环境条件
·环境温度:上限+40℃,且24h内测得的平均值不超过35℃,下限一10℃
·海拔高度:海拔不超过1000m;
·相对湿度:日平均值不超过95%,月平均值不超过90%;
·地震烈度:不超过8度;
·水蒸汽压力:日平均值不超过2.2kPa,月平均值不超过1.8kPa;
·周围环境:无火灾、爆炸危险、严重污秽、化学腐蚀及剧烈振动的场所。
技术参数
真空开关柜主要技术参数
真空断路器主要技术参数
弹簧操动机械主要技术参数
开关柜结构特点
开关柜按GB3906-2006和IEC298中铠装式金属封闭开关设备标准而设计。整体由柜体和可抽出部分(手车)两部分组成。柜体结构为组装式,用螺栓栓接组合成型,用金属隔板将开关柜内部分隔为断路器室、主母线室、电缆室和继电器仪表室。外壳防护等级达到IP3X,各隔室间防护等级为IP2X,并且所有金属结构件可靠接地,主回路系统的各隔室有独立排气的压力释放通道。
·外壳与隔板 关 柜开的外壳和隔板是用冷轧钢板经数控机床加工和折弯之后栓接而成。因此装配好的开关柜能保证结构尺寸的统一性。开关柜被隔为断路器室、主母线室、电缆室和继电器仪表室,各部分以接地的金属隔板分隔。
·手车
手车根据用途可分为断路器手车、电压互感器手车、计量手车、隔离手车等,各类手车的外形尺寸相同,相同用途的手车具有互换性。手车在柜内有试验/隔离位置和工作位置,每一位置都设有联锁装置以保证手车处于以上两位置时不能随便移动。
·断路器隔室 路 器断隔室内安装了特定的轨道供手车移动。断路器在试验位置与工作位置之间移动时,隔离活门自动打开或关闭,保障了工作人员不触及带电体。手车可在柜门关闭的情况下被操作,通过观察窗可看到手车在柜内所处的位置,同时看到手车上的任何功能标志。
·母线小室
主母线从一个开关柜引至另一个开关柜通过分支小母线和静触头盒固定,在穿越邻柜侧板时用母线套管固定。全部母线采用复合绝缘方式。
·电缆隔室
电缆室内可安装PT、接地开关、避雷器和多根电缆。
·继电器室
继电器室内板和面板可安装控制、保护元件、计量、显示仪表、带电监测指示器等二次元件。
·联锁装置
·开关柜具有可靠的联锁装置,切实保障操作人员及设备的安全;
·当接地开关在分闸位置时,手车才能从试验/隔离位置移至工作位置且后门不可打开,防止了误入带电间隔。
·当手车完全拉出柜外时或手车在柜内试验/隔离位置且接地开关联锁落锁时,可以进行接地开关合闸操作;手车在工作位置时,不
能闭合接地开关,防止了带电误合接地开关,阻止了接地开关处在闭合位置时将手车移到工作位置。
·断路器手车在试验/隔离位置或工作位置时,才能操作断路器;且断路器合闸后,手车无法移动,防止了带电负荷时推拉断路器。
·各柜体间可装电气联锁。
·接地装置
在电缆在室内,单独设有Φ6×50mm2的接地母线,此母线能贯穿相邻各柜,与柜体良好接触。
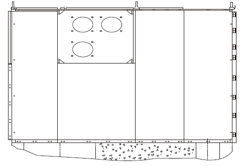
开关柜外形尺寸
开关柜安装
·电器室的高度:≥4500mm;
·柜后距墙距离:≥1500mm;
·基础构架的平面度:≤1mm/m2;
·基础预埋槽钢高出地面部分不行超过3mm;
·可用螺栓或焊接方式固定在基础上;
·开关柜重量约1800kg;
·开关柜操作走廊宽度(单列):≥3000mm,双列(面对面)≥4000mm。
开关柜安装基础示意图

